Với người làm nghề như chúng tôi, căn nhà không chỉ là chỗ ở tiện nghi, mà là nơi chạm tới cảm xúc. Nơi gia chủ bước vào và cảm thấy “đây chính là mình”.
Với dự án lần này, chúng tôi muốn tạo nên một không gian có thể “thở” – nơi gia chủ trở về và cảm thấy nhẹ nhõm, bình yên, nhưng đồng thời vẫn hiện đại, tiện nghi và trẻ trung đúng với lối sống của họ.
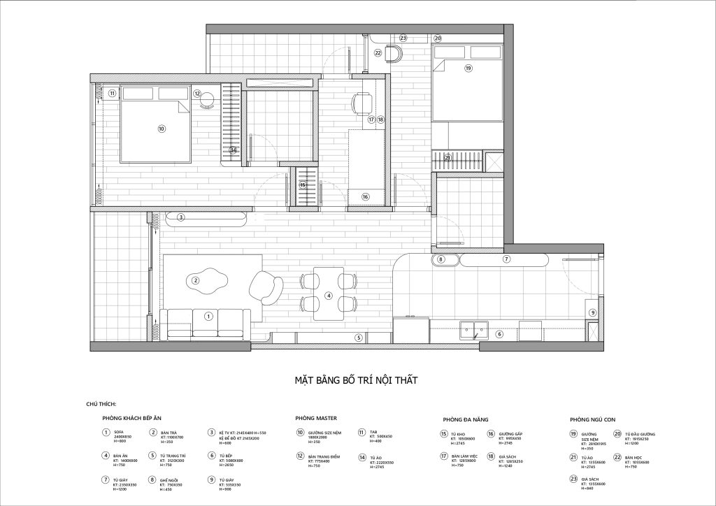
Dự án: Thenine Tower số 09 Phạm Văn Đồng
Diện tích: 87m2
Lavia – Mảnh ghép hoàn hảo cho tổ ấm
Lavia – Mảnh ghép hoàn hảo cho tổ ấm
Lavia – Mảnh ghép hoàn hảo cho tổ ấm
Lavia – Mảnh ghép hoàn hảo cho tổ ấm
Lavia – Mảnh ghép hoàn hảo cho tổ ấm
Lavia – Mảnh ghép hoàn hảo cho tổ ấm
Lavia – Mảnh ghép hoàn hảo cho tổ ấm
Lavia – Mảnh ghép hoàn hảo cho tổ ấm
Lavia – Mảnh ghép hoàn hảo cho tổ ấm
Lavia – Mảnh ghép hoàn hảo cho tổ ấm
Lavia – Mảnh ghép hoàn hảo cho tổ ấm
Lavia – Mảnh ghép hoàn hảo cho tổ ấm
Lavia – Mảnh ghép hoàn hảo cho tổ ấm
Lavia – Mảnh ghép hoàn hảo cho tổ ấm
Lavia – Mảnh ghép hoàn hảo cho tổ ấm
Lavia – Mảnh ghép hoàn hảo cho tổ ấm
Lavia – Mảnh ghép hoàn hảo cho tổ ấm
Lavia – Mảnh ghép hoàn hảo cho tổ ấm
Lavia – Mảnh ghép hoàn hảo cho tổ ấm
Lavia – Mảnh ghép hoàn hảo cho tổ ấm
Lavia – Mảnh ghép hoàn hảo cho tổ ấm
Lavia – Mảnh ghép hoàn hảo cho tổ ấm
Lavia – Mảnh ghép hoàn hảo cho tổ ấm
Lavia – Mảnh ghép hoàn hảo cho tổ ấm
Lavia – Mảnh ghép hoàn hảo cho tổ ấm
Lavia – Mảnh ghép hoàn hảo cho tổ ấm
Lavia – Mảnh ghép hoàn hảo cho tổ ấm 

Hãy liên hệ ngay đến chúng tôi để được các kiến trúc sư tư vấn chi tiết nhất.
– Công ty TNHH Kiến trúc LAVIA concept Việt Nam.
– Văn phòng làm việc: J03-15 An Phú Shop Villa, Khu đô thị Dương Nội, Hà Đông, Hà Nội.
– Xưởng sản xuất 1 : Bình Đà, Thanh Oai, Hà Nội
– Xưởng sản xuất 2: Tây Phương, Thạch Thất, Hà Nội
Hotline: ☎️ 0981914929
Email: noithatlavia@gmail.com

