CH06 CT1B VĂN QUÁN – MR H

Hành trình “biến hình” căn hộ 70m² thành 4 phòng ngủ cho 3 thế hệ
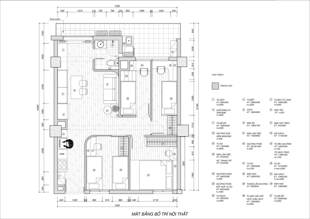
Khi tôi nhận dự án này, hiện trạng chỉ có 2 phòng ngủ, 1 vệ sinh – vừa vặn cho một gia đình trẻ.
Thế nhưng, khi ông bà chuyển lên ở cùng, gia chủ nói với tôi một câu mà tôi nhớ mãi:
“Chị chỉ mong sao ba thế hệ có thể ở cùng nhau, mà ai cũng vẫn thấy thoải mái, có góc riêng cho mình.”
Đó là lúc tôi biết, mình sẽ không chỉ thiết kế lại một căn hộ – mà là thiết kế lại nhịp sống của cả một gia đình.
Chúng tôi bắt đầu bằng việc tái cấu trúc toàn bộ mặt bằng, giữ lại phần kết cấu chính, nhưng “xoay chuyển” cách bố trí để mỗi mét vuông đều có giá trị
  • Tận dụng diện tích phòng khách và thu nhỏ một phòng ngủ để thêm phòng ngủ thứ ba cho ông bà.
  • Chuyển khu bếp – ăn ra phía hành lang vào nhà, biến hành lang vừa là khu bếp, vừa là lối đi lại liền mạch. Để hành lang không còn là lối đi vô nghĩa, mà trở thành nơi ấm cúng, thơm mùi cơm nhà.
  • Chia đôi một phòng ngủ thành hai không gian riêng cho bé trai và bé gái. Nhỏ thôi, nhưng đủ để mỗi đứa có một thế giới riêng.
  • Thu hẹp khu vệ sinh để tăng diện tích cho phòng khách – nơi cả nhà quây quần.
  • Bo mềm các góc tường, giúp lối đi trở nên nhẹ nhàng và an toàn hơn.
  • Phối hợp vật liệu sáng, điểm nhấn gỗ ấm để căn hộ vừa thoáng đãng, vừa giữ được cảm giác gần gũi, thân thuộc.
  • Và tất nhiên, nội thất đa năng là “vũ khí” chủ đạo: ghế băng bàn ăn liền tủ, giường tầng kết hợp tủ đồ… – mọi thứ đều tính toán kỹ để vừa đẹp, vừa hữu dụng.
Sau 3 tháng thiết kế và thi công, căn hộ 70m² đã hoàn toàn “thay da đổi thịt”.
Ánh sáng len lỏi đến từng góc nhỏ, không gian rộng mở hơn – không phải vì tường được dỡ bớt, mà vì mọi thứ nay vừa vặn với cuộc sống của họ.
Ba thế hệ – ba nhịp sống – cùng hòa vào một không gian chung ấm áp.
Mỗi góc nhà đều có câu chuyện riêng, nhưng tất cả gặp nhau ở một điểm – sự gắn kết gia đình. Tôi nhìn thấy niềm vui của gia chủ khi cả ông bà và các con đều tìm thấy chỗ của mình. Và có lẽ, với một người làm nghề như tôi, đó chính là khoảnh khắc đẹp nhất sau mỗi công trình.
📍Một dự án cải tạo nhỏ về diện tích, chi phí nhưng lớn về ý nghĩa – vì nó chứa đựng cả nỗ lực tối ưu không gian lẫn tình yêu dành cho tổ ấm.
Lavia – Mảnh ghép hoàn hảo cho tổ ấm
Lavia – Mảnh ghép hoàn hảo cho tổ ấm Lavia – Mảnh ghép hoàn hảo cho tổ ấm
Lavia – Mảnh ghép hoàn hảo cho tổ ấm Lavia – Mảnh ghép hoàn hảo cho tổ ấm
Lavia – Mảnh ghép hoàn hảo cho tổ ấm
Lavia – Mảnh ghép hoàn hảo cho tổ ấm Lavia

Lavia – Mảnh ghép hoàn hảo cho tổ ấmLavia – Mảnh ghép hoàn hảo cho tổ ấm

Lavia – Mảnh ghép hoàn hảo cho tổ ấm Lavia
Lavia – Mảnh ghép hoàn hảo cho tổ ấm
Lavia – Mảnh ghép hoàn hảo cho tổ ấm 

Lavia – Mảnh ghép hoàn hảo cho tổ ấm

Lavia – Mảnh ghép hoàn hảo cho tổ ấm
Lavia – Mảnh ghép hoàn hảo cho tổ ấm 
Lavia – Mảnh ghép hoàn hảo cho tổ ấm 
Lavia – Mảnh ghép hoàn hảo cho tổ ấm 
Lavia – Mảnh ghép hoàn hảo cho tổ ấm 
Lavia – Mảnh ghép hoàn hảo cho tổ ấm 
Lavia – Mảnh ghép hoàn hảo cho tổ ấm 
Lavia – Mảnh ghép hoàn hảo cho tổ ấm 
Lavia – Mảnh ghép hoàn hảo cho tổ ấm 
Lavia – Mảnh ghép hoàn hảo cho tổ ấm 
Lavia – Mảnh ghép hoàn hảo cho tổ ấm
Lavia – Mảnh ghép hoàn hảo cho tổ ấm 
Lavia – Mảnh ghép hoàn hảo cho tổ ấm 
Lavia – Mảnh ghép hoàn hảo cho tổ ấm 
Lavia – Mảnh ghép hoàn hảo cho tổ ấm
Lavia – Mảnh ghép hoàn hảo cho tổ ấm 
Lavia – Mảnh ghép hoàn hảo cho tổ ấm 
Lavia – Mảnh ghép hoàn hảo cho tổ ấm
Lavia – Mảnh ghép hoàn hảo cho tổ ấm
Lavia – Mảnh ghép hoàn hảo cho tổ ấm 
Lavia – Mảnh ghép hoàn hảo cho tổ ấm 
Lavia – Mảnh ghép hoàn hảo cho tổ ấm 
Lavia – Mảnh ghép hoàn hảo cho tổ ấm 
Lavia – Mảnh ghép hoàn hảo cho tổ ấm 
Lavia – Mảnh ghép hoàn hảo cho tổ ấm
Lavia – Mảnh ghép hoàn hảo cho tổ ấm

 

Hãy liên hệ ngay đến chúng tôi để được các kiến trúc sư tư vấn chi tiết nhất.

– Công ty TNHH Kiến trúc LAVIA concept Việt Nam.
– Văn phòng làm việc: J03-15 An Phú Shop Villa, Khu đô thị Dương Nội, Hà Đông, Hà Nội.
– Xưởng sản xuất : Bình Đà, Thanh Oai, Hà Nội
Hotline: ☎️ 0981914929
Email: noithatlavia@gmail.com

Để lại một bình luận

Email của bạn sẽ không được hiển thị công khai. Các trường bắt buộc được đánh dấu *