L.A House – Cảm xúc phóng khoáng thể hiện trong không gian hiện đại.
Căn nhà này được định hình từ mong muốn rất rõ ràng của gia chủ: không bị bó buộc trong những khuôn mẫu quen thuộc, không gian cần đủ mở để đón ánh sáng, đủ rộng để cảm xúc được “thở”, và đủ tinh gọn để mọi thứ trở nên nhẹ nhàng hơn.
Dự án: Liền kề Kiến Hưng Luxury
Lavia – Mảnh ghép hoàn hảo cho tổ ấm
Lavia – Mảnh ghép hoàn hảo cho tổ ấm
Lavia – Mảnh ghép hoàn hảo cho tổ ấm
Lavia – Mảnh ghép hoàn hảo cho tổ ấm
Lavia – Mảnh ghép hoàn hảo cho tổ ấm
Lavia – Mảnh ghép hoàn hảo cho tổ ấm
Lavia – Mảnh ghép hoàn hảo cho tổ ấm
Lavia – Mảnh ghép hoàn hảo cho tổ ấm
Lavia – Mảnh ghép hoàn hảo cho tổ ấm
Lavia – Mảnh ghép hoàn hảo cho tổ ấm
Lavia – Mảnh ghép hoàn hảo cho tổ ấm
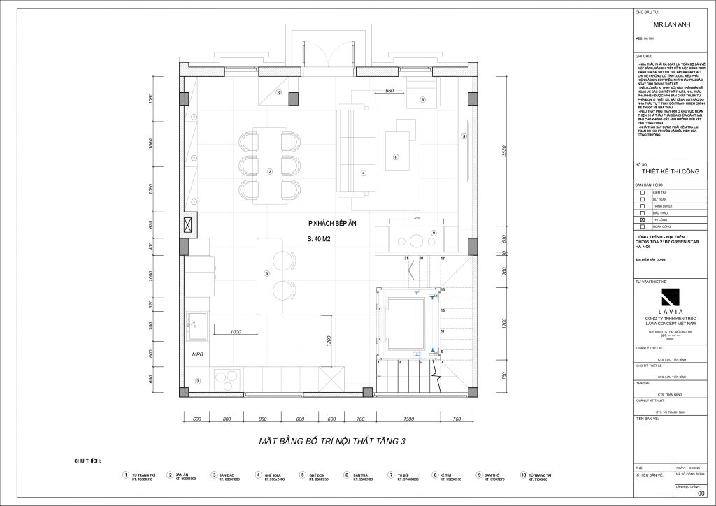
Không gian khách bếp ăn là một không gian chung nằm ở 1 sàn
Lavia – Mảnh ghép hoàn hảo cho tổ ấm
Lavia – Mảnh ghép hoàn hảo cho tổ ấm
Lavia – Mảnh ghép hoàn hảo cho tổ ấm
Lavia – Mảnh ghép hoàn hảo cho tổ ấm
Lavia – Mảnh ghép hoàn hảo cho tổ ấm
Lavia – Mảnh ghép hoàn hảo cho tổ ấm
Lavia – Mảnh ghép hoàn hảo cho tổ ấm
Lavia – Mảnh ghép hoàn hảo cho tổ ấm
Không gian phòng ngủ master
Lavia – Mảnh ghép hoàn hảo cho tổ ấm
Lavia – Mảnh ghép hoàn hảo cho tổ ấm
Lavia – Mảnh ghép hoàn hảo cho tổ ấm
Lavia – Mảnh ghép hoàn hảo cho tổ ấm
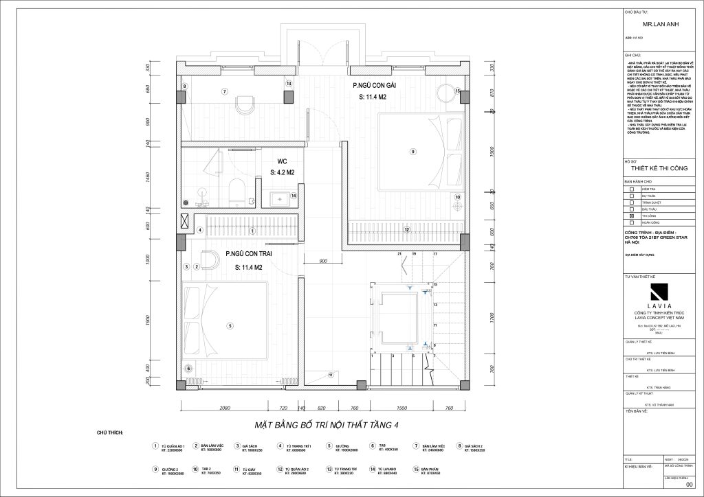
Phòng ngủ bé trai
Lavia – Mảnh ghép hoàn hảo cho tổ ấm
Lavia – Mảnh ghép hoàn hảo cho tổ ấm
Lavia – Mảnh ghép hoàn hảo cho tổ ấm
Lavia – Mảnh ghép hoàn hảo cho tổ ấm
Phòng ngủ bé gái

Hãy liên hệ ngay đến chúng tôi để được các kiến trúc sư tư vấn chi tiết nhất.
– Công ty TNHH Kiến trúc LAVIA concept Việt Nam.
– Văn phòng làm việc: J03-15 An Phú Shop Villa, Khu đô thị Dương Nội, Hà Đông, Hà Nội.
– Xưởng sản xuất 1 : Bình Đà, Thanh Oai, Hà Nội
– Xưởng sản xuất 2: Quang Trung, Thạch Thất, Hà Nội
Hotline: ☎️ 0981914929
Email: noithatlavia@gmail.com

