Lột xác căn nhà tập thể cũ
Căn tập thể tại Chùa Bộc đã trải qua một thời gian sử dụng rất dài. Khi khách hàng tìm đến chúng tôi, cũng là lúc khác hàng muốn thay đổi hoàn toàn không gian từ bố cục đến nội thất.
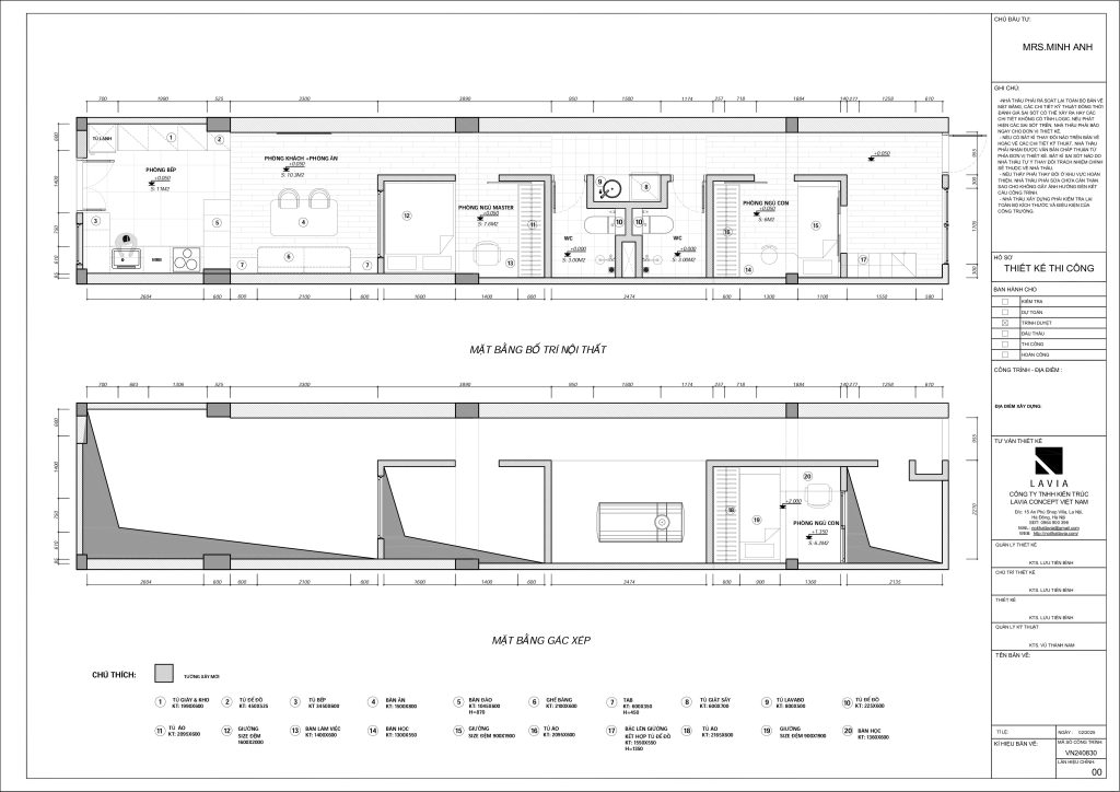
Và bản thiết kế là thành quả sau 2 tháng. Hãy cùng chờ đợi bộ ảnh thực tế sau thi công cùng chúng tôi nhé
Dự án: Tập thể Chùa Bộc
Diên tích: 72m2
Lavia – Mảnh ghép hoàn hảo cho tổ ấm
Lavia – Mảnh ghép hoàn hảo cho tổ ấm
Lavia – Mảnh ghép hoàn hảo cho tổ ấm
Lavia – Mảnh ghép hoàn hảo cho tổ ấm
Lavia – Mảnh ghép hoàn hảo cho tổ ấm
Lavia – Mảnh ghép hoàn hảo cho tổ ấm
Lavia – Mảnh ghép hoàn hảo cho tổ ấm
Lavia – Mảnh ghép hoàn hảo cho tổ ấm
Lavia – Mảnh ghép hoàn hảo cho tổ ấm
Lavia – Mảnh ghép hoàn hảo cho tổ ấm
Lavia – Mảnh ghép hoàn hảo cho tổ ấm
Lavia – Mảnh ghép hoàn hảo cho tổ ấm
Lavia – Mảnh ghép hoàn hảo cho tổ ấm
Lavia – Mảnh ghép hoàn hảo cho tổ ấm
Lavia – Mảnh ghép hoàn hảo cho tổ ấm
Lavia – Mảnh ghép hoàn hảo cho tổ ấm
Lavia – Mảnh ghép hoàn hảo cho tổ ấm
Lavia – Mảnh ghép hoàn hảo cho tổ ấm
Lavia – Mảnh ghép hoàn hảo cho tổ ấm
Lavia – Mảnh ghép hoàn hảo cho tổ ấm
Lavia – Mảnh ghép hoàn hảo cho tổ ấm
Lavia – Mảnh ghép hoàn hảo cho tổ ấm
Lavia – Mảnh ghép hoàn hảo cho tổ ấm
Lavia – Mảnh ghép hoàn hảo cho tổ ấm
Lavia – Mảnh ghép hoàn hảo cho tổ ấm
Lavia – Mảnh ghép hoàn hảo cho tổ ấm
Hãy liên hệ ngay đến chúng tôi để được các kiến trúc sư tư vấn chi tiết nhất.
– Công ty TNHH Kiến trúc LAVIA concept Việt Nam.
– Văn phòng làm việc: J03-15 An Phú Shop Villa, Khu đô thị Dương Nội, Hà Đông, Hà Nội.
– Xưởng sản xuất 1 : Bình Đà, Thanh Oai, Hà Nội
– Xưởng sản xuất 2: Quang Trung, Thạch Thất, Hà Nội
Hotline: ☎️ 0981914929
Email: noithatlavia@gmail.com

