Dự án: Nhà lô Hải Phòng
Diện tích: 60,72m2 x 3 tầng. Ngang 3,3m sâu 18,4m
Thiết kế và thi công: Lavia Concept Việt Nam
Lavia – Mảnh ghép hoàn hảo cho tổ ấm
Lavia – Mảnh ghép hoàn hảo cho tổ ấm
Lavia – Mảnh ghép hoàn hảo cho tổ ấm
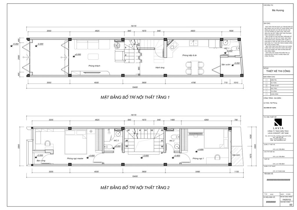
Mặt bằng tầng 1 và tầng 2
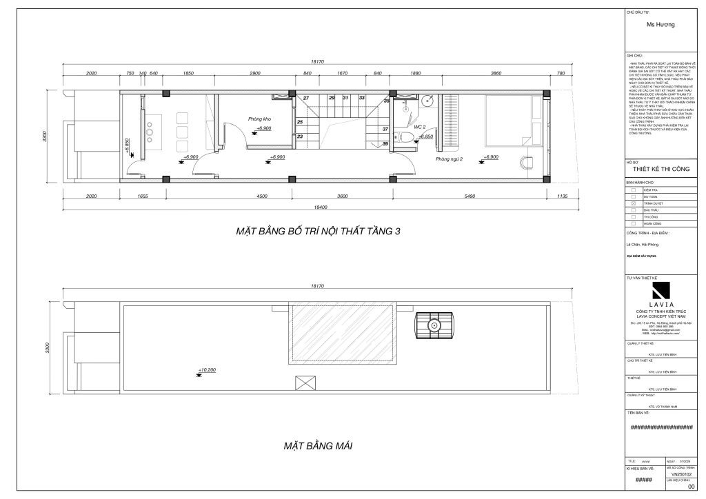
Mặt bằng tầng 3 và tầng máiHãy liên hệ ngay đến chúng tôi để được các kiến trúc sư tư vấn chi tiết nhất.
– Công ty TNHH Kiến trúc LAVIA concept Việt Nam.
– Văn phòng làm việc: J03-15 An Phú Shop Villa, Khu đô thị Dương Nội, Hà Đông, Hà Nội.
– Xưởng sản xuất : Bình Đà, Thanh Oai, Hà Nội
Hotline: ☎️ 0981914929
Email: noithatlavia@gmail.com

