CẢI TẠO CĂN HỘ 2 PHÒNG NGỦ CHO GIA ĐÌNH 6 NGƯỜI VỚI 3 THẾ HỆ.
Căn hộ của anh chị là căn hộ cũ đã qua 17 năm sử dụng. Là những dự án chung cư đầu tiên của thành phố Hà Nội. Toàn bộ gia đình đã sinh sống từ lúc chung cư mới bàn giao đến nay.
Kế hoạch đổi nhà lớn hơn của anh chị bị chững lại do giá BĐS đã vượt qua tầm với của gia đình. Mong muốn của anh chị là có thể cải tạo một không gian sống đủ để 3 thế hệ sinh hoạt.
Và dưới đây là thiết kế + hiện trạng của căn hộ để mọi người tham khảo.
Dự án: CT1B Văn Quán
Diện tích: 77 m2
Lavia – Mảnh ghép hoàn hảo cho tổ ấm
Lavia – Mảnh ghép hoàn hảo cho tổ ấm
Lavia – Mảnh ghép hoàn hảo cho tổ ấm
Lavia – Mảnh ghép hoàn hảo cho tổ ấm
Lavia – Mảnh ghép hoàn hảo cho tổ ấm
Lavia – Mảnh ghép hoàn hảo cho tổ ấm
Lavia – Mảnh ghép hoàn hảo cho tổ ấm
Lavia – Mảnh ghép hoàn hảo cho tổ ấm
Lavia – Mảnh ghép hoàn hảo cho tổ ấm
Lavia – Mảnh ghép hoàn hảo cho tổ ấm
Lavia – Mảnh ghép hoàn hảo cho tổ ấm
Lavia – Mảnh ghép hoàn hảo cho tổ ấm
Lavia – Mảnh ghép hoàn hảo cho tổ ấm
Lavia – Mảnh ghép hoàn hảo cho tổ ấm
Lavia – Mảnh ghép hoàn hảo cho tổ ấm
Lavia – Mảnh ghép hoàn hảo cho tổ ấm
Lavia – Mảnh ghép hoàn hảo cho tổ ấm
Lavia – Mảnh ghép hoàn hảo cho tổ ấm
Lavia – Mảnh ghép hoàn hảo cho tổ ấm
Lavia – Mảnh ghép hoàn hảo cho tổ ấm
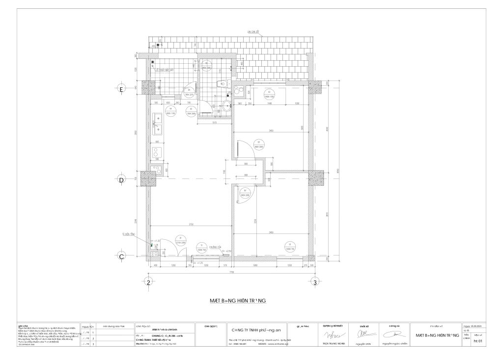
Mặt bằng hiện trạng
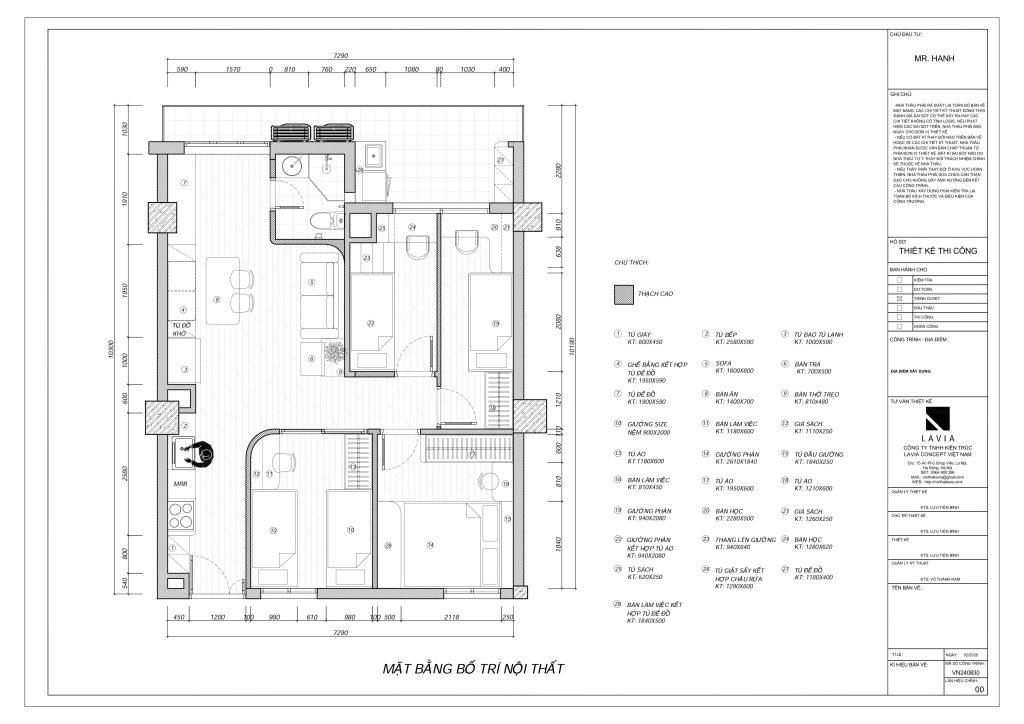
Mặt bằng cải tạoHãy liên hệ ngay đến chúng tôi để được các kiến trúc sư tư vấn chi tiết nhất.
– Công ty TNHH Kiến trúc LAVIA concept Việt Nam.
– Văn phòng làm việc: J03-15 An Phú Shop Villa, Khu đô thị Dương Nội, Hà Đông, Hà Nội.
– Xưởng sản xuất : Bình Đà, Thanh Oai, Hà Nội
Hotline: ☎️ 0981914929
Email: noithatlavia@gmail.com

